Посетена 59 пътиПубликувана в 09:59 на 10 Декември 2025
Обща информация
Квадратура61 m2
Етаж2-ри
ТEЦДА
Допълнителна информация
Директно от инвеститор!
📍 Esteta Properties представя новострояща се модерна жилищна сграда в кв. Люлин 8
✨ Основни характеристики:
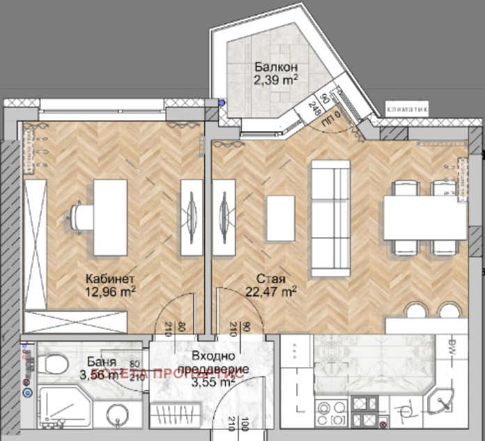
🏠 2-стаен апартамент
🌅 Изложение:Север
📐 Застроена площ: 53. 40 кв. м
🅿 ️ Възможност за гараж или паркомясто
🏫 В близост: детска градина, училище, метро, градски транспорт и основни пътни артерии
💡 Отличен избор за живеене или инвестиция комуникативна и тиха локация с бърз достъп до всички ключови точки на града.
🏢 В сградата се предлагат и други 2-, 3- и 4-стайни апартаменти с различни квадратури и изложения богат избор според вашите нужди!
💰 Гъвкави схеми на плащане
📆 Срок на завършване: края на 2028 г.
📞 За повече информация и огледи:
Мартин Петров
📱 +359 88 531 4000
Особености
Асансьор • С гараж • С паркинг • Тухла


