Продава 2-СТАЕН, град Варна, Владислав Варненчик 1 ID 69715506
Брокер
Обща информация
Допълнителна информация
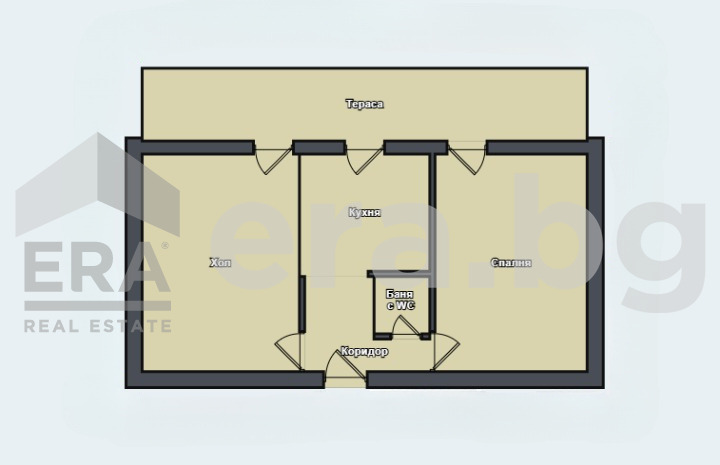
ЕРА Визия предлага за продажба двустаен апартамент, разположен на втори етаж от общо осем етажа в панелен жилищен блок, с площ от 61, 05 кв. м. Имотът е среден, светъл и топъл. Състои се от: коридор, хол (17, 5 кв. м), спалня (17, 5 кв. м), кухня, баня с тоалетна, с обща тераса пред трите стаи. Изцяло южно изложение. Към имота има и мазе. Предлага се необзаведен.
Подовите настилки в помещенията са ламинат и балатум. Стените са на тапети. Дограмата на прозорците е ПВЦ. ВиК инсталацията на кухнята и банята е сменена. Банята е с фаянс и теракот. Терасата е остъклена с винкел. Паркирането в района е свободно.
Двустайният апартамент се намира в панелен жилищен блок, с добре поддържан вход, с контрол на достъпа. Функционира един асансьор. Районът е тих и спокоен. Връзката с централната част и други части на града се осъществява посредством ул. ' Янко Мустаков', бул. ' Константин и Фружин', бул. ' Цар Освободител' и бул. ' Трети март'. В близост има ЦДГ, ДКЦ, детски площадки, училище, аптеки, супермаркет, III ДКЦ, спирки на градски транспорт. ..
ЕРА е независим кредитен посредник към БНБ и предоставя безплатна консултация и съдействие при финансиране на избрания от Вас имот. .. Код: 5301519

