Обща информация
Допълнителна информация
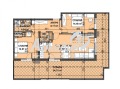
ОФЕРТА-27901; Предлагаме Ви изключително светъл панорамен тристаен апартамент с площ от 156кв. м в нова сграда, разположена на тихо и спокойно за живеене място.
Жилището се състои от просторна дневна с кухненски бокс, две големи спални, баня с тоалетна, тоалетна, коридор и една тераса от която се излиза от всички стай. Предлага се завършен на шпакловка и замазка, цялостно вътрешно окабеляване за интернет и телевизия, входна блиндирана врата, дограмата е с немски профил.
Сградата е малка и се изпълнява с висококачествени материали, луксозни общи части със стълбище с естествен камък и иноксови парапети с правоъгълен профил, 6 местен асансьор. Кооперацията ще бъде с отлично изградена инфраструктура.
Паркинг с възможност за закупуване на паркомясто или партерен гараж. За огледи: Атанас Копарански - 0879056451 Вижте още наши предложения www.arcadiaimoti. com


