Продава 2-СТАЕН, град Варна, м-т Пчелина ID 70064733

140 000 €273 816.20 лв.Не се начислява ДДС

Агенция

БУРЛЕКС ИМОТИ, град Варна
БУРЛЕКС ИМОТИград Варна ул. Панайот Волов 46

Брокер

ВасилЛичен телефон: 0887033333
Посетена 3 пътиПубликувана в 09:16 на 09 Октомври 2025

Обща информация

Квадратура75 m2
Етаж1-ви

Допълнителна информация

БУРЛЕКС ИМОТИ предлага ЧИСТО НОВ, ОБЗАВЕДЕН двустаен апартамент с АКТ 16, с паркомясто включено в цената, в м-ст Пчелина, ул. Патриарх Максим

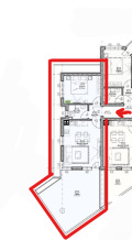
Имотът е с площ 75 кв. м. ,разположен на 1-ви етаж от 5 етажна нова сграда с асансьор. Акт 16. Статут на апартамент. Югозападно изложение.

Разпределение:
входно антре, дневен тракт с кухня, спалня, баня с тоалетна и голяма тераса 60 кв. м. , която не е включена в квадратурата на апартамента.

Жилището е ЧИСТО НОВО, напълно обзаведено и оборудвано с всички необходими мебели и електроуреди, климатици.

С включено паркомясто в цената.

ключ в офиса.

За повече информация и огледи Васил Сотиров, тел. 0887033333

Особености

Асансьор • С паркинг • Интернет връзка • Обзаведен • Контрол на достъпа • Саниран • Тухла

Страница на обявата

Агенция

БУРЛЕКС ИМОТИ, град Варна
БУРЛЕКС ИМОТИград Варна ул. Панайот Волов 46

Брокер

ВасилЛичен телефон: 0887033333

Споделяне

Преглeд на обявите по населени места: