Брокер
Обща информация
Допълнителна информация
📢 ДИРЕКТНО ОТ ИНВЕСТИТОР - БЕЗ КОМИСИОН КЪМ АГЕНЦИЯТА! 📢 ОФЕРТА: 13635
● Агенция за недвижими имоти ГОЛД ИМОТИ има удоволствието да Ви представи новострояща се сграда пред АКТ 14, в кв. Остромила.
● Предлагаме избор от двустайни и тристайни апратаменти.
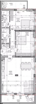
⮚ Разпределение:
Тристайните апартаменти се състоят от: входно антре, всекидневна с кухненски бокс, две спални, две бани с тоалетна, склад и тераса.
● Налични модули:
- 95, 02 кв. м - 118 780 евро
- 131, 66 кв. м - 164 572 евро
- 133, 14 кв. м - 166 426 евро
- 141, 35 кв. м - 176 690 евро
- 190, 50 кв. м - 238 122 евро
- 194, 68 кв. м - 243 351 евро
✔ ️ Степен на завършеност :
Апартаментите ще бъдат издавани по БДС: шпакловка и замазка, ел. инсталация до ключ, ВиК до тапа, външна блиндирана врата, висок клас ПВЦ дограма.
🎯 Характеристики и предимства:
- Сградата ще бъде оградена по целия периметър. Достъпът ще е ограничен посредством бариера.
- Интегрирана система от камери за сигурност на собствениците.
- Общи части с кътове за отдих и детска площадка.
- Подготовка за Smart Home автоматизация
🧱 За строителството:
- Алуминиева дограма RAYNERS с троен стъклопакет
- Тухли Wienerberger за оптимална топло- и шумоизолация
- Замазка от най-висок клас BAUMIT
- Вентилируема фасада
- Италиански плочки в общите части
🚗 Паркиране:
Има възможност за покупка на паркоместа и гаражи.
📄 Срокове на изпълнение:
Пусков срок: 2028г.
✔ ️ Схеми на плащане:
Разсрочени схеми на плащане.
📍 Локация: В непосредствена близост до сградата ще намерите всичко необходимо за комфортния живот от ресторанти и супермаркети, до училища, паркове, спортни зали, детски градини, офис на Спиди, офис на Еконт и бензиностанции.
➡ ️ 'ГОЛД ИМОТИ' Ви предлага да се възползвате от професионално кредитно посредничество чрез Credit Center при ипотека, потребителски кредит и рефинансиране!
-УСЛУГАТА Е ИЗЦЯЛО БЕЗПЛАТНА!
-ИЗГОТВЯНЕ НА НЯКОЛКО ОФЕРТИ ОТ ВОДЕЩИ БАНКИ!
-НАЙ-ИЗГОДНИ УСЛОВИЯ СПРЯМО ВАШИЯТ ПРОФИЛ!
-НЕ Е НЕОБХОДИМО ДА СЕ РАЗКАРВАТЕ ВЪВ ВСЕКИ КЛОН НА РАЗЛИЧНИ БАНКИ!
➡ ️ Още атрактивни и актуални оферти може да разгледате на нашият сайт: www.goldhome.bg
📞 За повече информация и при интерес за оглед, моля свържете се с нас.







