Обща информация
Допълнителна информация
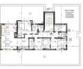
NextStep недвижими имоти ви представя просторен четиристаен апартамент с площ от 165. 91 кв. м и голяма покривна тераса с площ от 207 кв. м на пети последен етаж в новостроящ се жилищен комплекс с акт 14 в кв. Остромила, гр. Пловдив.
Апартаментът е със следното функционално разпределение : просторна всекидневна с площ от 40. 5 кв. м, една спалня с площ от 14 кв. м със собствени баня и дрешник, една спалня с площ от 14. 1 кв. м със собствен дрешник, една спалня с площ от 13. 2 кв. м, баня с площ от 6. 2 кв. м и склад с площ от 2. 8 кв. м.
Първият етап от комплекса вече е завършен с акт 16 и се отличава с модерна архитектура, луксозни общи части и зелени площи.
За повече информация и запазване на час за оглед, моля обадете се на посочения в обявата телефон и цитирайте код 77







