Обща информация
Допълнителна информация
БЕЗ КОМИСИОННА! С АКТ 16! Тристаен апартамент намиращ се буквално в полите на Витоша със страхотна гледка, част от луксозен затворен комплекс съставен от малки, четири етажни сгради с голямо отстояние една от друга и богато озеленен парк.
ТОП локация: комплексът се намира на 10 мин. с кола от мол България и Ринг мол и 5 мин. с кола до околовръстен път.
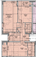
Разпределение: предверие 8. 74 м2, дневна с кухненски бокс 26. 3 м2, родителска спалня 17. 43 м2, детска спалня 14 м2, баня с тоалетна 5. 4 м2, втора баня с тоалетна 3. 4 м2, две лоджии по 3. 8 м2, склад 5. 93 м2. Чиста площ 104. 76 кв. м.
Изложение Юг, Югозапад
Апартаменти са с вградена Smart Home ready технология, която можете да управлявате през телефона си. Можете лесно и отвсякъде да отключвате и заключвате вратата, да регулирате температурата на апартамента си.
Комплексът предлага поддържана и организирана среда, която да отговаря на нуждите ви с всички необходими функционалности красиви междублокови пространства, градини с пейки, детски кът, фитнес, ресторант, охрана.
Отоплението е на газ с монтирано газово котле в апартамента.
Отлична инвестиция за млади семейства и модерни хора, които търсят разумен и спокоен живот, на чист въздух, близо до планината в уредена среда.
Налични гаражи на цена 30 000 евро без ДДС
Цена на апартамента е 358 327 евро с ДДС
При интерес моля пишете на office@imo-home. com или позвънете на 098 8951012














