Продава МНОГОСТАЕН, град София, Кръстова вада ID 71675718
Брокер
Обща информация
Допълнителна информация
Предлагам просторен и светъл многостаен апартаментен , тип мезонет
Характеристики на имота:
Площ:
258 кв. м. / чиста застроена площ 220 в. м. /
Етаж: 1 и 2 / 15
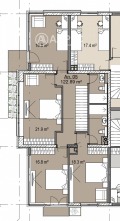
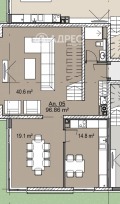
Разпределение:
Първо ниво - дневна, трапезария с кухненски бокс, баня с тоалетна, фоайе , стълба - 113. 63 кв. м.
Второ ниво - четири спални , две бани с тоалетни , коридор , балкон -144. 60 кв. м.
озеленена покривна тераса - 216. 50кв. м.
Отопление: газ/климатизация
Сградата е:
с модерна архитектура, висок клас материали и луксозни общи части
Просторно и функционално жилище, подходящо за семейство
Ново строителство с висок клас материали и енергийна ефективност
Подземни паркоместа и гаражи за удобство на живущите
Кръстова вада
Петнадесететажна жилищна сграда , с етапи на строителство:
Акт 14 - м. ноември 2025 г.
Акт 15 - м. юни 2027 г.
Акт 16 - м. септември 2027 г.
Апартаментът се намира в бързо развиващата се и предпочитана зона на Кръстова вада, с отлична инфраструктура и лесен достъп:
само на няколко минути пеша от метростанция Витоша и МОЛ Парадайс
удобна връзка с Околовръстен път, бул. Черни връх
в близост до училища, детски градини, болници , фитнеси и Южен парк
Обади се сега и цитирай този код 657024



