Обща информация
Допълнителна информация
БЕЗ КОМИСИОН!
Cozy Home Agency представя на Вашето внимание, новострояща се сграда в гр. София, ж. к. Младост 4 с предвиден акт 16 за края на 2026г
Район с изградена инфраструктура, богато озеленяване в междублоковото пространство и в близост до метростанция Бизнес парк.
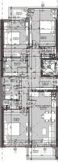
-Приложена е схема на многостаен апартамент:
-Етаж: 5 от 9
-Площ: 141. 26 кв. м
Разпределение:
-Входно антре
-Голяма дневна с кухненски бокс
-Три спални
-Две бани с тоалетни
-Самостоятелна тоалетна
-Склад
-Гардеробна
-Два балкона
Всички наши огледи се провеждат с протокол за оглед.
Оферта 251
-Агенцията предлага безплатно съдействие за консултация с кредитен посредник за ипотечно финансиране.
-Свържете се с нас за да организираме Вашия оглед: 0882424017 Бирсен Шукриева
-Посетете нашия сайт и разгледайте други подобни имоти: www.cozyhomeagency. com




