Продава 2-СТАЕН, област Пловдив, гр. Асеновград ID 71943726
121 500 €237 633.35 лв.Не се начислява ДДС
Посетена 164 пътиПубликувана в 13:43 на 25 Февруари 2026
Обща информация
Квадратура70 m2
Етаж4-ти
Допълнителна информация
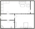
Представяме на Вашето внимание двустаен апартамент в Асеновград, разположен в новопостроена сграда в един от най-предпочитаните райони на Асеновград. Към жилището има и изба. Сградата е с асансьор и се намира в централен район с отличен достъп, в близост до магазини, училища и детски градини. Имота е със следното функционално разпределение: входно антре, просторен хол с кухненски бокс, спалня, баня с тоалетна и тераса. Имота се продава с цялото налично обзавеждане.
За Ваше улеснение прилагаме схема на разпределение на имота.
Обадете се сега и цитирайте следния код: 131815
Особености
Асансьор • Тухла











