Брокер
Обща информация
Допълнителна информация
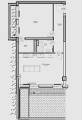
Имот със статут ателие, който може да е преустроен като: апартамент или офис.
250 м. до НБУ
С АКТ 16 от 2024г. , на шпакловка и замазка.
Етаж минус едно, поради денивелация, има и изглед във вътрешен двор.
Застроена площ на имота: 72, 40 кв. м. , заедно с общите части на сграда: 86, 60 кв. м.
Разпределение: стая, работно помещение, склад, коридор и санитарен възел.
Може да бъде преустроен:
- в тристаен (има съответни чертежи към офертата).
- апартамент с преходен хол и три отделни равноценни стаи (спални), което от гледна точка на близост до НБУ (250 метра) може да направи имот с голям инвестиционен потенциал.
Два прозореца в работна стая изглеждат в английски двор, другите два прозореца в холна стая изглеждат в прекрасен вътрешен озеленен двор с малка денивелация.
Предвидена газификация.
Близо до спирки на автобуси 73, 59, 60. 15 минути пеша до метростанция Мизия, 7 минути пеша до Супермаркет.
ОФЕРТА 0489 в агенция www.realtyarthouse. com
Ключ в агенция.
Информация и огледи: Лариса Николаева +359 87 757 24 21.











