Брокер
Обща информация
Допълнителна информация
Предлагаме за продажба двустаен апартамент в малка, бутикова сграда в кв. Сухата река.
БЕЗ КОМИСИОННА ОТ КУПУВАЧА
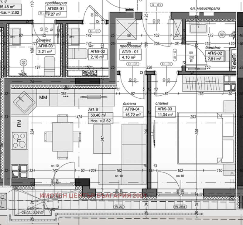
-Функционално разпределение - антре, просторна дневна с кухненски бокс, спалня, баня с тоалетна, дрешник и тераса.
-Изложение-ЮГ
-Етаж-2 от 4
-Гъвкава схема на плащане
-Възможност за покупка на гаражи или паркоместа
-Предлагаме за продажба и други двустайни апартаменти в сградата
Сградата:
-Четири етажна сграда с подземни паркоместа и гаражи и богато озеленяване около нея; Луксозни общи части; Стълбища с технически камък; Тих хидравличен асансьор Комплектовани ОВ/ВиКи Електро инсталации; Пет камерна ПВЦ дограма Масивни входни врати, Изградени трасета за TV и интернет.
ЛОКАЦИЯ:
На петнадесет минути пешеходно разстояние от метростанции Театрална и Хаджи Димитър , трамвай 22 и автобуси 79 и 90, училища, детски градини, МОЛ Сердика, парк Заимов , с бърз автомобилен достъп до центъра и Околовръстен път.
Апартаментът е перфектен, както за живеене, така и за отдаване под наем с тихо и спокойно местоположение.
Предлагаме също така:
-Безплатно консултиране с кредитен консултант 100% успеваемост
-Транспорт на ниски цени
-Управление на имота с гарантиран месечен наем
-Други подобни апартаменти в района
Водещ брокер по имота-Рени Йорданова




