Обща информация
Допълнителна информация
Компания Х представя на Вашето внимание двуистаен апартамент в кв. Остромила.
МЕСТОПОЛОЖЕНИЕ: Кварталът разполага с добре развита инфраструктура, обществен транспорт, магазини, училища, детски градини и други удобства. В околността на квартала се намират няколко парка и зелени площи, които предлагат възможности за отдих и разходки на открито. Кварталът е подходящ за семейства с деца, като предлага спокойна и сигурна обстановка за живеене.
СТРОИТЕЛСТВО: Разположен на 3-ти етаж в сграда ново строителство.
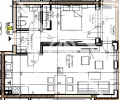
РАЗПРЕДЕЛЕНИЕ: Жилището разполага с площ от 70 кв. м. , състои се от предверие, всекидневна с кухненски бокс и трапезария, спалня, баня с тоалетна, склад и тераса.
СЪСТОЯНИЕ: С акт 14!
Заповядайте да Ви го покажем. Използвайки нашите услуги Вие ще превърнете закупуването на новия си дом в едно приятно изживяване, ще получите персонален консултант, съдействие при кандидатстване за кредит от всички банки в България, интериорни дизайнери и екип, който да се погрижи за нужните документи по Вашата сделка. На Ваше разположение сме всеки ден, от понеделник до неделя от 09:00 до 20:00ч. Възползвайте се от безплатна консултация в наш офис, където ще ви спестим време и ще ви запознаем с всички актуални имоти в България, отговарящи на Вашето търсене. Свържете се с нас на 088777990 или на 0884060990 и цитирайте кода към имота: 993-29181

