Брокер
Обща информация
Допълнителна информация
гр. Варна, МЛАДОСТ
Код оферта: 32372.
✅ Акт 16 - м. юли 2025г.
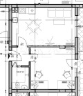
Предлагаме двустайно жилище състоящо от антре, всекидневна, веранда, спалня, баня с тоалетна.
Имотът се намира в чисто нова сграда с асансьор.
Продава се във вида от снимките - финно шпакловани стени и боядисани в бяло, гранитогрес в коридора и банята.
Височина тавани 3. 20 метра.
Локация - намира се в района на кв. Младост в близост до два главни булеварда и в близост до спирки на градски транспорт.
Брокер Недвижими Имоти: Дарин Щерев - 0877 86 66 23
'РУДИ КЕЙ': Компанията предлага всички необходими юридически и технически проверки на имота, както и възможностите за оптималната им реализация, организира всички етапи на сделка за покупко-продажба или наемни отношения до нейното финализиране с нотариално прехвърляне на имота. Съдейства за отпускане на банкови кредити при възможно най-добри условия за клиента. Компанията е регистрирана по ЗЗЛД като администратор на лични данни, което гарантира сигурността на клиентите. Ако проявявате интерес към тази оферта, необходима Ви е допълнителна информация, желаете да направите оглед на имота, оставаме на Ваше разположение за всякакви въпроси
Брокер Недвижими Имоти: Дарин Щерев - 0877 86 66 23









