Обща информация
Допълнителна информация
Открийте мястото, където ще се чувствате у дома от първия момент.
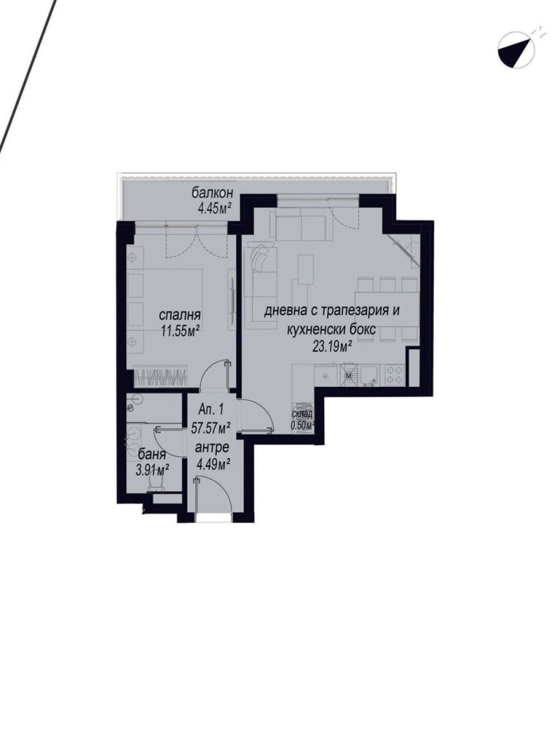
Титан Пропъртис офис - Черни връх с радост предлага на Вашето внимание двустаен апартамент за продажба в ж. к. Зона Б-4. Жилището със застроена площ 57, 57 кв. м е разположено на 2-рия етаж от общо 7 в нова сграда, която ще бъде въведена в експлоатация (Акт 16) 2028 г. Изложението Запад/Север гарантира оптимална дневна светлина. Разпределението включва входно антре, просторен хол, спалня, баня с тоалетна и балкон. Отоплението е на електричество. Апартаментът се предлага на шпакловка и замазка.
Сградата е в етап строеж предлага с гъвкави схеми за плащане, съобразени с начина на финансиране на бъдещите собственици
В близост до имота ще намерите:
- Учебно заведение: 18. СРЕДНО УЧИЛИЩЕ 'УИЛЯМ ГЛАДСТОН' на 476 метра
- Училище: 134 СУ 'Димчо Дебелянов' на 266 метра
- Банка: ПроКредит Банк АТМ 24/7 на 430 метра
- Банка: Тексим Банк на 445 метра
- Болница: Медицински комплекс Полимед на 459 метра
- Медицински център: ДКЦ 11-София ЕООД на 121 метра
- Междинна спирка: Ж. К. БАНИШОРА на 197 метра
- Междинна спирка: УЛ. ОПЪЛЧЕНСКА на 344 метра
- Метростанция: Опълченска на 637 метра
'С нас, вашето търсене на имот завършва с усмивка. '
За оглед на това и други атрактивни предложения, не се колебайте да ни потърсите на посочения телефон или да ни изпратите данните си чрез формата за запитване на сайта.
Реф. номер: 2107742.


