Обща информация
Допълнителна информация
Жилищният стандарт Platinum Homes продължава да утвърждава своята концепция като стартира изграждането на Етап 2 на Platinum Homes North - модерния жилищен комплекс разположен на бул. Северен в Пловдив. Новият етап включва четири жилищни секции А, Б, В и Г, които ще предложат разнообразие от жилища, офиси и търговски обекти, интегрирани в удобна и елегантна градска среда.
📍 4 жилищни секции, проектирани с различни височини
📐 Разнообразие от жилища с модерна архитектура
🌳 Озеленен вътрешен парк
🅿 Паркоместа и гаражи
🔐 Сигурност и комфорт
📐 офиси и търговски обекти
🌟 🌟 🌟 Атрактивни цени и отстъпки от цената за плащане преди Акт 14. 🌟 🌟
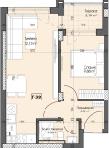
Предлагаме на вашето внимание двустаен апартамент, състоящ се от предверие, дневна, спалня, баня с тоалетна и тераса със западно изложение в секция Г.
Позвъни и научи повече:
📲 0883 601 501
📲 0883 301 201



