Продава 2-СТАЕН, град Пловдив, Беломорски ID 73477385

75 900 €148 447.50 лв.Цената е с включено ДДС

Агенция

АЛФА РИЪЛ ЕСТЕЙТ ГРУП, град Пловдив
АЛФА РИЪЛ ЕСТЕЙТ ГРУПград Пловдив бул. 'Източен' 48, ет.5
Посетена 2 пътиПубликувана в 16:06 на 12 Март 2026

Обща информация

Квадратура68 m2
Етаж4-ти

Допълнителна информация

✔ Доказан строител с над 20 годишен опит в сферата✔ Гарантирана цена до Акт 16! ✔ Разсрочени схеми на плащане!

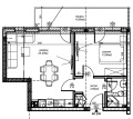
➡ Апартаментът се състои от антре, баня с тоалетна, склад, спалня, дневна с трапезария, тераса и е с обща площ от 67, 78 кв. м.

✔ Локация: кв. Беломорски

✔ Технически характеристики на сградите:
Конструкция: Монолитна, стоманобетонна; 

Стени между съседни имоти - зид от керамични тухли Wienerberger с обща дебелина 25см;
Външна топлоизолация - 10см
PVС дограма

Входни врати: Блиндирани, пожароустойчиви;
Вътрешни стени и таван - гипсова мазилка, под - циментова замазка. 

ВиК инсталации: Водопровод - полипропиленови тръби, канализация - PVC тръби; 

Ел. инсталация: Трипроводна, хоризонтална и вертикална разводка с монтирано апартаментно табло; 

Слаботокови инсталации: Изградено окабеляване за кабелна телевизия, телефон, интернет и домофонна инсталация; 

Отоплителна инсталация: изградени трасета за климатици; 

Асансьор: електрически, шумоизолиран;
Общи части: Напълно завършени по проект.

✔ Паркиране: Възможност за покупка на надземни гаражи и паркоместа

Реф. : 5440

Особености

Асансьор • Тухла

Страница на обявата

Агенция

АЛФА РИЪЛ ЕСТЕЙТ ГРУП, град Пловдив
АЛФА РИЪЛ ЕСТЕЙТ ГРУПград Пловдив бул. 'Източен' 48, ет.5

Споделяне

Преглeд на обявите по населени места: