Брокер
Обща информация
Допълнителна информация
Имоти Премиер Ви представя двустаен апартамент в новострояща се сграда, разположена в един от най-предпочитаните и динамично развиващи се райони на Варна   в близост до КАТ, на границата на кв. Младост. Районът предлага отлична инфраструктура, лесен достъп до главни пътни артерии, магазини, детски градини и училища. 
Апартаментът е ситуиран на 11-ти етаж от общо 11, с обща площ от 76. 1 м² и източно изложение, осигуряващо светлина и комфорт през целия ден. Сградата е в процес на строителство, със срок на завършване до 2 години. 
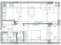
Разпределение:
✔ ️ Входно преддверие   5, 6 м² 
✔ ️ Просторна дневна с кухненски бокс   28, 74 м² 
✔ ️ Спалня   12, 12 м² 
✔ ️ Баня с тоалетна   3, 3 м² 
✔ ️ Килер   1, 6 м² 
✔ ️ Лоджия   3, 49 м² 
Допълнителна информация:
✅ Възможност за гъвкави схеми на плащане
✅ Опция за закупуване на паркомясто
Ние от Имоти Премиер ще Ви съдействаме през целия процес   от избора на имота до финализиране на сделката! При желание съдействаме и за банково кредитиране при най-добри условия. 
📞 За повече информация и огледи: Код на имот   375372



