Продава 2-СТАЕН, град Пловдив, Кършияка ID 73782569

150 727 €294 796.39 лв.Не се начислява ДДС

Агенция

ПОПОВ КОНСУЛТ, град Пловдив
ПОПОВ КОНСУЛТград Пловдив ул. Дрин 50

Брокер

ЙорданкаЛичен телефон: 0887222227
Посетена 37 пътиПубликувана в 13:09 на 22 Април 2025

Обща информация

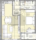
Квадратура79 m2
Етаж2-ри

Допълнителна информация

ПОПОВ КОНСУЛТ предлага за продажба двустаен апартамент в модерния жилищен комплекс SP Residence 2 в кв. Кършияка, Пловдив. Комплексът се отличава с висок клас строителство, съвременен архитектурен дизайн, европейска визия, перфектна градска локация и максимален комфорт. Апартаментът е разположен на ет. 2 /първи жилищен/ в секция Б, с изцяло южно изложение.

Основни характеристики на апартамента:
- ? 11-етажна сграда
- ? Площ: 79. 33 м? /чиста площ 65. 00 кв. м + общи части 12. 88 кв. м + изба от 1. 45 кв. м/
- ? Изложение: Юг
- ?? Разпределение: Една спалня, просторен хол с кухненски бокс, баня-WC и лоджия
- ?? Паркиране: В допълнение може да закупите подземни или наземни паркоместа.
- ?? Състояние: Продава се на шпакловка и замазка - завършете го по свой вкус
- ? Цена: 1900 евро/м?
- ?? Очаквано въвеждане в експлоатация: септември 2025 г.

Предимства на SP Residence 2:
- ?? Модерна архитектура и съвременен дизайн
- ? Зелени площи и зони за отдих
- ? Удобен достъп до ключови обекти - търговски центрове, образователни институции и заведения на минути разстояние
Общите части на сградите и терасите са луксозно завършени с положен гранитогрес. Сградата разполага с два асансьора във всяка секция.

Районът е изключително комуникативен, в близост са разположени спирка на градски транспорт, училище, детска градина, магазини, медицински център Хипократ, фитнес, бул. България, хотел Риц, река Марица, ежедневни удобства и услуги, места за отдих и развлечения. Отлично решение за лично ползване или отдаване под наем, поради атрактивната локация в регион с перфектна инфраструктура, предоставяща възможност за бързо и лесно придвижване до всяка точка на града.

? Съдействие за закупуването чрез банков кредит от водещи банки на преференциални условия.

?? За повече информация обадете ни се на посочените телефони.

ПОПОВ КОНСУЛТ - С ОТНОШЕНИЕ И ГРИЖА КЪМ ВАШИЯ ИМОТ!

Особености

Тухла

Страница на обявата

Агенция

ПОПОВ КОНСУЛТ, град Пловдив
ПОПОВ КОНСУЛТград Пловдив ул. Дрин 50

Брокер

ЙорданкаЛичен телефон: 0887222227

Споделяне

Преглeд на обявите по населени места: