Брокер
Обща информация
Допълнителна информация
Предлагаме Ви за продажба едностаен апартамент в новострояща се сграда в квартал Бриз, гр. Варна.
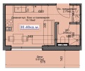
Апартаментът е с площ от 30. 48 кв. м. , има и избеното помещение с площ 4. 66 кв. м, двор 11. 03 кв. м.
Апартаментът е разположен на 1 етаж от общо 4 в сграда с асансьор.
Предлагат се и други едностайни и двустайни апартаменти в сградата.
Апартамент ще бъде завършен по БДС, а след това ще ви бъде предложено и завършване до ключ.
Разрешение на строеж ще бъде издадено след ноември 2025г.
Към апартамента може да се закупи паркомясто на цена 13 000 евро.
Сградата се намира в близост до училище, спирки на градски транспорт, детска градина и магазин, което я прави идеална за семейства с деца и хора, които ценят лесния достъп до града.
Мястото е както спокойно така и много комуникативно, само на 1. 5 км от търговски комплекс Пикадили Парк.
Сградата е разположена в урбанизиран район с добра инфраструктура.


