Обща информация
Допълнителна информация
АКТ 16 ДО НЯКОЛКО МЕСЕЦА! 32кв. м ДВОР! ИЗТОК! ЛУКСОЗЕН КОМПЛЕКС!
Представяме Ви двустаен апартамент, разположен в затворен комплекс от висок клас.
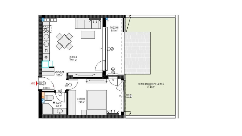
Жилището е разположно на партер и разполага с 32 кв. м частен двор! Състои се от входно антре, дневна, спалня, баня с тоалетна, балкон (лоджия) и 32кв. м частен двор!
Източното изложение и френските прозорци осигуряват естествена светлина през целия ден и по-ниски разходи за отопление.
Комплексът предлага: 8 000 кв. м частен парк, детски площадки, спортно игрище и открит фитнес, алея за джогинг, ресторант, зони за отдих с фонтани и богато озеленяване, контрол на достъпа.
Сградата се изгражда с висок клас естествени материали и внимание към детайла.
Отоплението е предвидено чрез индивидуално газово котле и климатици.
Очаквано въвеждане в експлоатация (АКТ 16): средата на 2026 г.
📞 За да запазите час за оглед, обадете се СЕГА и цитирайте код: 143494.





