Брокер
Ню ВижънЛичен телефон: 0896610115
Посетена 33 пътиПубликувана в 15:34 на 13 Март 2026
Обща информация
Квадратура100 m2
Етаж2-ри
Допълнителна информация
🌐 Локация: Кършияка, до река Марица
💶 Цена: 169 558 EUR
🔑 Характеристики: 3-стаен, чисто нов, необзаведен; тухла
📏 Площ: 100 кв. м, етаж 2 от 10
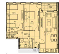
Предлагаме Ви 3-стаен апартамент на супер локация в квартал Кършияка, до река Марица. Апартаментът е на 2-ри етаж от общо 10. Състои се от коридор, склад, хол с кухненски бокс, 2 спални, 2 бани с тоалетна и тераса, със западно изложение
🏦 Нашите клиенти могат да се възползват от банкови кредити с преференциални условия във водещите български банки.
⚖ Агенцията предлага пълно съдействие до финализиране на сделката, включително подготовка на документите, проверка за тежести, изготвяне на оценки и др. правни становища.
Особености
Асансьор • Тухла
Страница на обявата
Брокер
Ню ВижънЛичен телефон: 0896610115

