Брокер
Обща информация
Допълнителна информация
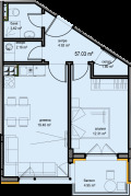
ДВУСТАЕН АПАРТАМЕНТ ПРЕД АКТ 16!
* изложение - ИЗТОК
* чиста площ - 57 кв. м
* акт 16 - до края на 2025г.
* Предимства:
✓ Сградата ще бъде с ново иновативно решение за строителството в района с вентилируеми окачени фасади с 3D панели от най-високо качество, окачени стъклени части на стълбищна клетка. С висок клас на изпълнение, както на фасадата, така и на общите части.
✓ Добре ситуирана на комуникативно място около училище , супермаркет Фантастико , дрогерия Lilly, ресторанти , банки , спирка на автобуси, в близост до нова Община Овча Купел и още много търговски обекти.
✓ Прекрасна гледка към Витоша;
* Отопление: ГАЗ;
* Съдействие за ИПОТЕЧЕН КРЕДИТ;
ЗА ОГЛЕДИ И ПОВЕЧЕ ИНФОРМАЦИЯ - Айла Адамова, тел: +359 877 22 39 77 / +359 24 26 22 99. Ако съм заета и не Ви отговоря, моля, позвънете пак или изпратете запитване по e-mail: [email protected]. Разгледайте всички наши предложения за продажба на апартаменти в София на www.delta3. Bg



