Продава 2-СТАЕН, град Варна, Владислав Варненчик 1 ID 75084261
Брокер
Обща информация
Допълнителна информация
Уважаеми клиенти,
На вашето внимание представяме двустаен апартамент, който е част от нов проект в кв. Владиславово - един от най-обновените и развиващи се райони на Варна. Сградата е разположена на място с нови строителства, близо до парк, училища, детски градини и големи търговски вериги.
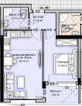
Апартаментът се състои от антре, дневна с кухненски бокс, спалня, баня с тоалет в едно, тераса с излаз от двете стаи и изба. Жилището е функционално, помещенията са с правилни форми и без скосове.
Към сградата има наличи подземни и външни паркоместа.
Жилищата се предлагат по БДС като за изпълнението на сградата ще бъдат използвани най-съвременни способи и висококачествени материали, съгласно последните изисквания и нормативи за устойчивост, топлоизолация и комфорт на живеене.
При избор на имот винаги може да разчитате на безплатна консултация от специалистите от РОНЕВА ООД Предлагаме също така и съдействие за отпускане на банков кредит и помощ при сключване на сделки и подготвяне на нужната документация!
ОФЕРТА 80311
www.roneva.bg



