Продава 2-СТАЕН, област Бургас, гр. Несебър ID 75229792

67 276 €131 580.42 лв.Не се начислява ДДС

Агенция

ПЕТРАКИЕВИ ООД, град Бургас
ПЕТРАКИЕВИ ООДград Бургас улица Цар Асен 19

Брокер

Цветан Личен телефон: 0886088088
Посетена 145 пътиПубликувана в 16:09 на 30 Април 2025

Обща информация

Квадратура61 m2
Етаж2-ри

Допълнителна информация

БЕЗ ТАКСА ПОДДРЪЖКА!
НОВИЯ ГРАД НЕСЕБЪР! ТЪРСЕНА ЛОКАЦИЯ! ДОКАЗАН СТРОИТЕЛ! СТАРТИРАНО СТРОИТЕЛСТВО! АКТ 14! ВЪЗМОЖНОСТ ЗА ПОКУПКА НА ГАРАЖ, ПАРКОМЯСТО! ЦЕЛОГОДИШНО ЖИВЕЕНЕ! МОДЕРНА СГРАДА! АСАНСЬОР! РАЗНООБРАЗИЕ ОТ ДВУСТАЙНИ И ТРИСТАЙНИ ИМОТИ! ЯХТЕНО ПРИСТАНИЩЕ! КАЧЕСТВЕНО СТРОИТЕЛСТВО! ДО ПЛАЖ!
Петракиеви недвижими имоти представя нов двустаен апартамент без такса поддръжка в новострояща се жилищна сграда в най младия и бързоразвиващ се квартал с перфектна инфраструктура - Черно море , в новия град на Несебър. Кварталът е с удобна локация и добра комуникативност. Жилищната сграда е разположена в началото на новия град със стратегическо разположение в близост до всичко необходимо за постоянно живеене, както и недалеч от най- близкия градски плаж. По проект сградите ще бъдат две, на 5 етажа, с модерна и стилна визия. Ще бъдат построени на 2 етапа. Между тях се предвижда детска площадка. В момента се строи сграда 1, която е на етап АКТ 14. Ще бъде завършена и въведена в експлоатация декември 2025 година. Предлага се разнообразие от двустайни и тристайни апартаменти, които ще бъдат издадени по БДС. Жилищата са проектирани изключително внимателно - с функционално разпределение и правилни форми.
Паркирането е обезпечено с гаражи и паркоместа.
30 000 двоен гараж
20 000 единичен гараж
парко места подземен 15 000
парко места отвън 10 000
Цените на имотите са както следва:
Партерен етаж на цени от 1 300 Е/кв. м - с включени прилежащи дворове
Етаж 2, 3, 4 на цени от 1 100 Е/кв. м
Етаж 5 на цени от 1 200 Е/кв. м - с височина на таваните от 3 метра, като всички апартаменти на този етаж са с гледка към море
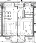
Двустайният апартамент е разположен на 2ри етаж с обща площ от 61. 16 кв. м.
Разпределение на имота
дневна с кухненска част
спалня
баня с WC
коридор
килер
тераса с излаз и от 2те стаи
Имотът ще бъде издаден по БДС. Подходящ е както за постоянно живеене, за ползване като ваканционни апартаменти и отдаване под наем.
Предимства на имота
без комисиона
без такса поддръжка
търсена и комуникативна локация, новия град на Несебър, близо до плаж, яхтено пристанище
акт 14, акт 16 края на годината (2025)
доказан строител, качествено строителство
модерна сграда
целогодишно живеене
възможност за покупка на гараж или парко място
Предлагаме разнообразие от двустайни и тристайни имоти, студио в сградата.
За района
Административният живот е съсредоточен в новата част на Несебър. Тази част на града се отличава с нова и модерна архитектура. На север и на юг от града се простират широки плажове с фин златист пясък и естествени пясъчни дюни. В югоизточната част на новия Несебър се намира Южния парк заемащ площ от 27 дка. Старинният Несебър е на пешеходно разстояние. Романтичната му атмосфера, тесните павирани улички, малки площади, антични останки е привлича многобройни туристи от цял свят. А най- големият морски курорт с безброй атракциони и вълнуващ нощен живот е в непосредствена близост до градчето. Код на офертата CAT 658/18.
Ние съдействаме да получите най - изгодни условия за банково кредитиране.

Особености

Асансьор • С паркинг • Контрол на достъпа • Тухла

Страница на обявата

Агенция

ПЕТРАКИЕВИ ООД, град Бургас
ПЕТРАКИЕВИ ООДград Бургас улица Цар Асен 19

Брокер

Цветан Личен телефон: 0886088088

Споделяне

Преглeд на обявите по населени места: