Обща информация
Допълнителна информация
🔥 ТОП ЦЕНA - Двустаен апартамент с АКТ 16 до 6 месеца! Качествено строителство! Опция за паркомясто!
✨ TRIVIUM ESTATE представя:
🏡 Двустаен апартамент с АКТ 14 - кв. Остромила, Пловдив
AKT 16 до 6 месеца!
📐 Площ: 58 кв. м
🏢 Етаж: 2
🌅 Изложение: Изток - Юг
🏁 Срок за завършване: 2026 г.
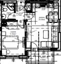
📑 Разпределение:
🚪 Входно предверие
🛋 Просторна дневна с кухненски бокс
🛏 Самостоятелна спалня
🛁 Баня с тоалетна
✅ Предимства на сградата и проекта:
🏗 Съвременна архитектура и висок клас материали
✨ Луксозно завършени общи части
🌳 Спокойна и тиха локация с удобен достъп до центъра и Околовръстното
🚗 Възможност за закупуване на паркомясто - 12 000
💡 TRIVIUM ESTATE осигурява:
💼 Безплатно съдействие при банково кредитиране
🤝 Пълна консултация през целия процес на покупка
👤 Отговорен консултант: Ивайло Райков
📌 Реф. 15793








