Брокер
Обща информация
Допълнителна информация
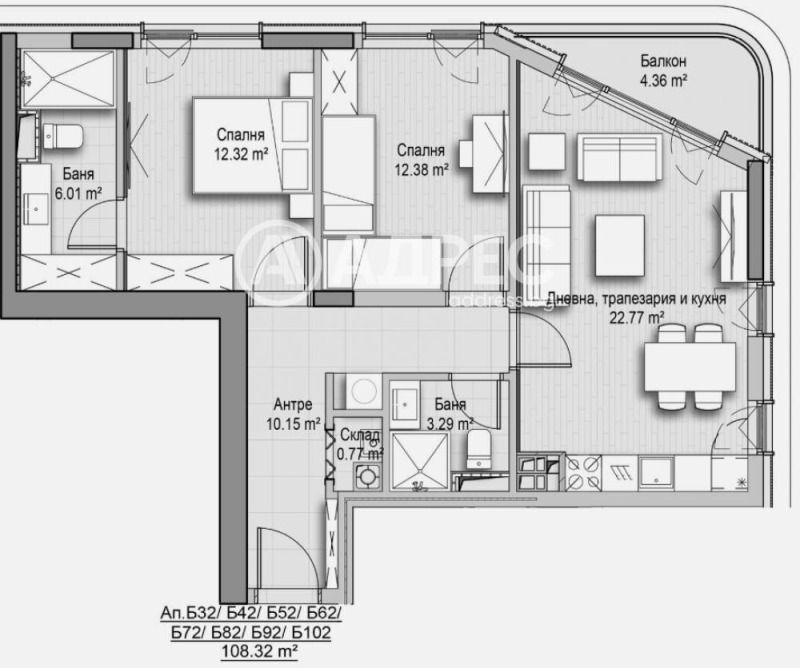
Тристаен апартамент с площ от 108кв. м. , състоящ се от антре, голяма дневна с кухненски бокс, две спални, две бани с тоалетни и тераса .
Този тристаен апартамент е чудесен избор за хора, които търсят комфортно и стилно жилище с удобна локация и невероятна гледка!
Цената е без ДДС.
Сградите са разположени в един от най-атрактивните и бързо развиващи се райони на града, осигуряващ бърз достъп до основните транспортни артерии на столицата, както и непосредствена близост до автобусни спирки, детски градини и училища.
Сградите се отличават с елегантна архитектура съчетана с естествени материали от високо качество и произведени от лидери на световния пазар.
Този уютен двустаен апартамент се намира в спокоен и приветлив район, което го прави идеален избор за комфортно живеене. Изложението е южно, което осигурява много светлина и топлина през целия ден.
Обади се сега и цитирай този код 638973





