Брокер
Обща информация
Допълнителна информация
📢 ЦЕНИ ДИРЕКТНО ОТ ИНВЕСТИТОР - БЕЗ КОМИСИОН ОТ КУПУВАЧА ! 📢 ОФЕРТА : 10034
- 'ГОЛД ИМОТИ' с удоволствие Ви представят нов комплекс С АКТ 14 изграден с усет към детайла и перфектна локация, той отговаря на нуждите и на най взискателния клиент, който търси нещо уникално.
- От светли двустайни жилища, отличаващи се с функционалност до просторни, елегантни апартаменти с четири спални , за клиентите се разкриват неограничени възможности за реализиране на мечтата за съвършен дом.
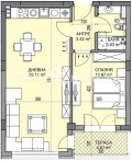
➡ ️ Разпределения :
Двустайните апартаменти се състоят от коридор , дневна с трапезария и кухненски бокс , спалня , баня с тоалетна и тераса .
Налични модули:
-73, 24кв. м - 106 500 евро
-79, 34кв. м. - 111 100 евро
-77, 78кв. м. - 112 600 евро
-71, 12кв. м - 117 400 евро
-77, 43 кв. м - 124 700 евро
➡ ️ В зависимост от етажите и изложенията , цената на апартаментите се променя. За подробна информация , може да се свържете с нас.
✔ ️ Характеристики и предимства на комплекса :
-Система за видеонаблюдение и контрол на достъпа, с цел осигуряване на спокойствието и сигурността на собствениците.
-Специално проектирано споделено пространство от 140 кв. м. с контролиран достъп , което ще се намира на партер . То ще бъде изцяло на разположение на собствениците на жилища, включващо релакс зона, място както за работа, така и за провеждане на бизнес срещи.
-Оформено и озеленено дворно пространство върху площ от 1000 кв. м. с декоративна растителност , в което ще бъдат обособени зони за отдих и площадки за игри и забавления.
✔ ️ Степен на завършеност :
-Стени и тавани гипсова мазилка; Под циментова замазка;
-Висококачествена алуминиева дограма троен стъклопакет
-Тераса гранитогрес и стъклени парапети
-Входна врата блиндирана
-Изградени Електро инсталация с монтирани ключове и контакти и ВиК инсталация до тапа
-Подготовка за видеодомофон, кабелна телевизия и интернет
-Фасада топлоизолация с каменна вата; висококачествена екстериорна мазилка , вентилируема декоративна фасада.
-Общи части на сградата напълно завършени общи части с мраморни плочи , парапети, осветление и контрол на достъпа.
🅿 ️ Паркиране :
Паркирането е обезпечено на 100% . На партерен и подземен етаж на сградата са проектирани паркоместа и гаражи, с възможност за покупка от всеки собственик.
📅 Срок на изпълнение :
АКТ 15 края на 2026 година АКТ 16 се очаква пролетта на 2027 година
📌 Локация:
Комплексът е разположен в сърцето на квартал Гагарин. Локацията е ключова - в близост до основни пътни артерии, бърз достъп до няколко изхода от града, търговски структури, детски градини, училища и паркове.
-На 3 минути пешеходно разстояние от ЦДГ 'Бреза' и ДГ 'Космонавт'
-На 8 минути пешеходно разстояние от СУ 'Никола Вапцаров'
-На 15 минути пешеходно разстояние от Международен панаир Пловдив
➡ ️ 'ГОЛД ИМОТИ' Ви предлага, да се възползвате от професионално кредитно посредничество чрез Credit Center при ипотека, потребителски кредит и рефинансиране!
-УСЛУГАТА Е ИЗЦЯЛО БЕЗПЛАТНА!
-ИЗГОТВЯНЕ НА НЯКОЛКО ОФЕРТИ ОТ ВОДЕЩИ БАНКИ!
-НАЙ-ИЗГОДНИ УСЛОВИЯ СПРЯМО ВАШИЯТ ПРОФИЛ!
-НЕ Е НЕОБХОДИМО ДА СЕ РАЗКАРВАТЕ ВЪВ ВСЕКИ КЛОН НА РАЗЛИЧНИ БАНКИ!
➡ ️ Още атрактивни и актуални оферти може да разгледате на нашият сайт : goldhome.bg
➡ ️ За повече информация и при интерес за оглед, моля свържете се с нас!





