Обща информация
Допълнителна информация
Титан Пропъртис офис Хиподрума представя на Вашето внимание тристаен апартамент в жилищен комплекс със страхотна локацията, а именно ж. к. Овча купел 2.
Комплексът е с ограничен достъп и се състои от 7 жилищни сгради, изградени по най-новите строителни стандарти. Сградите разполагат с асансьор, който обслужва и подземните етажи, осигурявайки удобство за жителите. Всяка от сградите е на шест етажа: 5 жилищни, един партерен, в който се помещават гаражи и един подземен, в който има гаражи, паркоместа и складови помещения.
В близост са разположени:
- Детска градина 33 'Сребърни звънчета' - на 260 м. ;
- Детска градина 84 'Детелина' - на 400 м. ;
- 149 СУ 'Иван Хаджийски' - на 700 м. ;
- метростанция 'Горна Баня' - на 300 м. ;
- търговски обекти - на 200 м. ;
- спирка на градски транспорт - на 200 м. ;
- медицинско заведение - на 500 м. ;
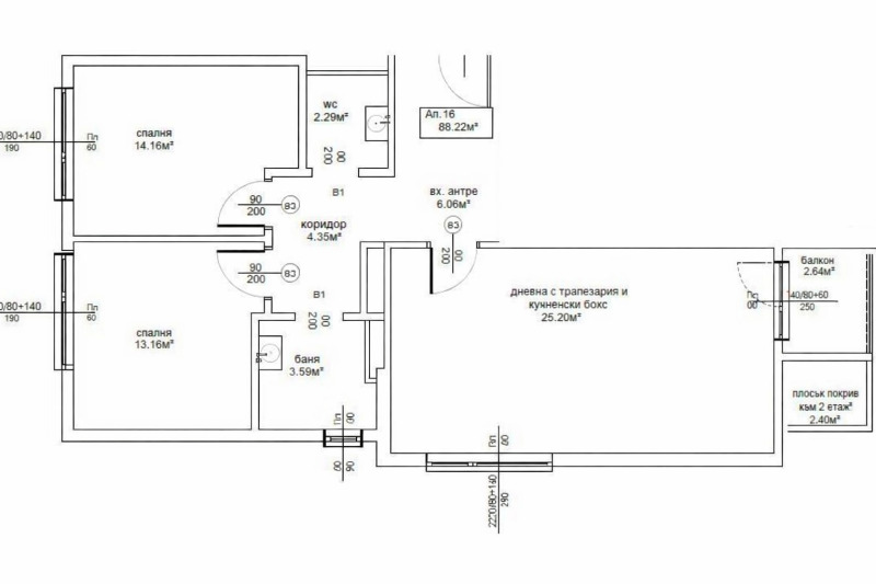
Апартаментът е разположен на 3-ти от пет етажа, разполага със застроена площ от
88. 22 кв. м. , Квадратура РЗП: 102, 23, разгърната по следния практичен начин: антре, хол с кухня, 2 спални, баня с тоалетна, отделно тоалетна с мокро помещение.
Комплексът е в начален етап на строителство и сградата ще влезе в експлоатация през 2028г. Отопление: ТЕЦ. Жилищата ще се издават на шпакловка и замазка, за да може Вашето въображение да ги превърне в мечтаните за Вас нови ДОМОВЕ! Комплексът разполага с вътрешният двор от 10 декара и детската площадка, които осигуряват приятна и спокойна среда за живеене.
За оглед на това и други атрактивни предложения, не се колебайте да ни потърсите на посочения телефон или да ни изпратите данните си чрез формата за запитване на сайта.

