Брокер
Обща информация
Допълнителна информация
ИМОТИ КАТИ Продава двустаен апартамент в гр. София, бул. История славянобългарска
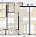
Апартаментът е с площ 72 кв. м. , на 4-ти етаж в затворен комплекс Central Park. Състои се от: голяма всекидневна, спалня, баня с тоалетна, преддверие, складово помещение в апартамента и тераса с излаз от двете стаи.
Изложение: Югозапад с прекрасна гледка към Витоша.
Ново, качествено строителство
Затворен комплекс с поддържани общи части
Отлична локация с лесен достъп до центъра на София
В близост има:
Магазин Kaufland
Метростанция Княгиня Мария Луиза
Спирки на градски транспорт
ДГ 48 Братя Грим и частна ДГ Your Kids
100 ОУ Найден Геров и 14 СУ проф. Асен Златарев
МБАЛ Княгиня Клементина София и ДКЦ 7
Множество банкови клонове
Фитнес, ресторанти, сладкарница
Оферта : 783
Агенцията съдейства и за потребителски, жилищни и ипотечни кредити, както и за извършване на цялостни ремонтни дейности.
За повече въпроси и огледи, свържете се с отговорния консултант :
Гавриел Ангелов









