Обща информация
Допълнителна информация
Представяме изключителната възможност да станете собственик на апартамент в луксозна жилищна сграда в кв. Еленово на гр. Благоевград.
Проектът предвижда сутерени с паркоместа, гаражи и избени помещения, партерен етаж с офиси, ателие и гаражи и четири жилищни етажа на които ще бъдат разположени 23 функционални жилища/двустайни, тристайни, многостаен с площи от 50 кв. м. - 115 кв. м/, луксозно завършени общи части, модерен безшумен асансьор, .
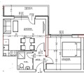
Предложението е за апартамент 14 с площ от 52 кв. м. , разположен на трети жилищен етаж и има следното функционално разпределение:
- входно антре, кухненски бокс с трапезария и дневна част, спалня, баня с тоалетна и една тераса.
В проекта на сградата са заложени материали от най-висок клас:
- зидария с Wienerberger-Porotherm 25 light ;
- 6 камерна PVC дограма с високоенергиен троен стъклопакет 4 сезона и К-а стъкло
- топлоизолационна система BAUMIT PRO EPS (експандиpан полистирен) 10 см. и полимерна мазилка;
- фасада - комбинация от метал и силикатна мазилка BAUMIT ;
- луксозен хидравличен асансьор;
- луксозни общи части с гранит и иноксови парапети;
- стъклени парапети на терасите;
- стени и тавани: машинна фина гипсова мазилка;
- луксозни входни врати: блиндирани с многоточково заключване и касова брава;
- изводи за климатици във всяка стая;
- под: циментова замазка;
- ел. до точка;
- ВиК до тапа;
- домофони и видеонаблюдение;
- покрив по архитектурен детайл - XPS 10 см и замазка за наклон; два пласта хидроизолация 4 мм;
Намира се в предпочитан район за живеене - в непосредствена близост до две училища, детски градини и ясла, плувен басейн, заведения, хранителни и нехранителни магазини, линия на градския транспорт, велоалея и др.
Възможност за за купуване на:
- подземни паркоместа на КОТА - 2. 60 м. на цени от 10 000 евро;
- подземни гаражи на КОТА - 2. 60 м. с площ от 15, 65 м2 до 27, 00 м2 на цени от 15 000 евро до 16 000 евро;
- гаражи на КОТА +/- 0. 00 м. с площ от 15, 65 м2 до 22, 33 м2 на цени от 17 000 евро до 18 000 евро;
- паркоместа на КОТА +/- 0. 00 м. на цени от 5 000 евро;
- Очакван срок за въвеждане в експлоатация началото на 2028 г.
- Цените са без включено ДДС което е в размер на 10%.
Обява 1237.


