Продава 3-СТАЕН, град Варна, Колхозен пазар ID 77229953

112 990 €220 989.23 лв.Цената е с включено ДДС

Агенция

HOME2U , град Варна
HOME2U град Варна бул. Владислав Варненчик 81, ет. 8
Посетена 95 пътиПубликувана в 11:09 на 06 Октомври 2025

Обща информация

Квадратура91 m2
Етаж5-ти

Допълнителна информация

СРЕДЕН ЕТАЖ!!!НАПРЕДНАЛО СТРОИТЕЛСТВО!!! ТРИСТАЕН!!!

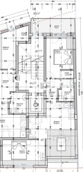
Предлагаме Ви ТРИСТАН апартамент в новострояща се сграда с изложение ЮГ/ С и е разположен на ПЕТИ жилищен етаж. Апартаментът се състои от дневен тракт с кухненска част, две спални, тераса, входно антре и баня/тоалет. Перфектен за инвестиция и за живеене. Сигурен строител който има и други завършени сгради. Гъвкав начин на плащане.

За Ваше улеснение прилагме и схема на разпределение на имота.

Обадете се СЕГА и цитирайте следния код: 130416

Особености

Тухла

Страница на обявата

Агенция

HOME2U , град Варна
HOME2U град Варна бул. Владислав Варненчик 81, ет. 8

Споделяне

Преглeд на обявите по населени места: