Брокер
Обща информация
Допълнителна информация
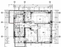
Предлагаме за продажба къща с разрешение за ползване (АКТ 16), разположена в един от най-предпочитаните райони край София в. з. Косанин дол, район Панчарево. Функционално разпределение на три нива: Етаж 0: двоен гараж и техническо помещение (37 кв. м). Етаж 1: входно антре, просторна дневна с кухня и трапезария, тоалетна (48 кв. м), излаз към веранда и озеленен двор. Етаж 2: три спални, две бани с тоалетни, тераса и мокро помещение. С обособени зелени площи и автоматизирана поливна система. Цената е без ДДС.
Къща с АКТ 16 в р-н Панчарево, в. з. Косанин дол. Имотът се намира в тиха и зелена зона с целогодишен достъп по асфалтов път, в непосредствена близост до: Детска градина. Магазин. Англо-американското училище (AAS).
Използвани са висококачествени материали и технологии без компромис. Енергийно ефективна и лесна за поддръжка. Камина, изводи за конвектори, подово отопление СОТ и видеонаблюдение. Висококачествен гранитогрес и фино шпакловани стени.
Къщата е разположена в една от най-спокойните и озеленени зони край София в. з. Косанин дол, район Панчарево. Локацията съчетава тишината и уединението на природата с удобната близост до града. Ключово предимство е панорамната гледка към околните хълмове и зелени площи, която създава усещане за простор, светлина и спокойствие през всички сезони. В съчетание с чистия въздух, малкото застрояване и естествената зеленина, тази локация предлага среда, идеална за пълноценен и здравословен начин на живот далеч от шума на града, но с бърз и лесен достъп до всичко необходимо.
Обади се сега и цитирай този код 663335








