Брокер
Обща информация
Допълнителна информация
ИРИДА НЕДВИЖИМИ ИМОТИ Ви предлага за продажба просторен и слънчев двустаен апартамент в кв. Лозенец. Намира се в близост до Южeн парк, ресторант Happy и плувен басейн Спартак, BILLA, две училища, Метростанция Джеймс Баучер.
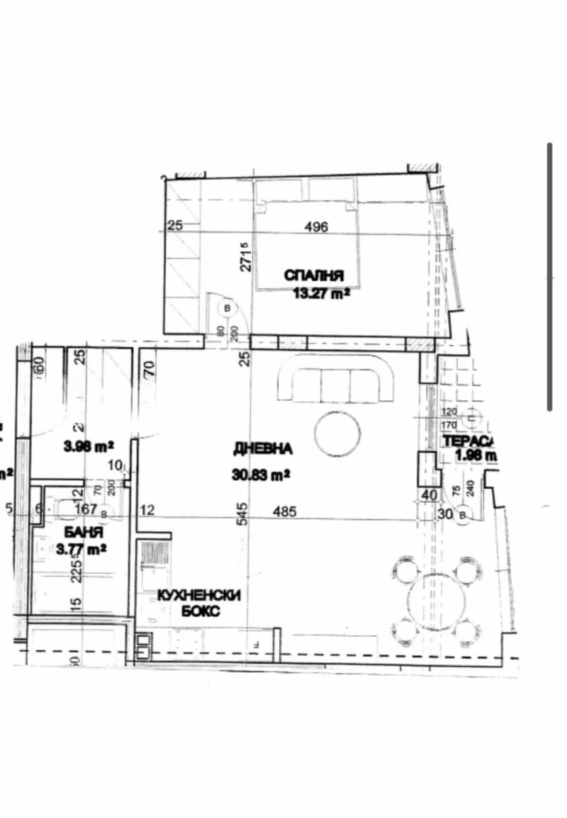
Жилището се намира в сграда от 2007год. Състои се от дневна с трапезария и кухненски бокс, една спалня, баня с тоалетна и една тераса. Изцяло с южно изложение. Предлага се с цялото налично обзавеждане и оборудване.
Отоплява се на ТЕЦ, има монтиран климатик.
Към имота има прилежащо мазе.
Отличен имот за инвестиция и/ или живеене!
ПОСЕТЕТЕ САЙТА НИ : WWW. IRIDA. BG
***
Обадете се сега на тел: 0878332245 и цитирайте този код: A-1778052
***
СВЪРЖЕТЕ СЕ С НАС! РАБОТИМ И В ПОЧИВНИТЕ ДНИ!
Предлагаме БЕЗПЛАТНО СЪДЕЙСТВИЕ за одобрение и получаване на ипотечен кредит за покупка на жилище при най-добри условия за Вас, чрез услугите на лицензиран кредитен консултант!










