Посетена 3 пътиПубликувана в 15:57 на 25 Март 2026
Обща информация
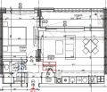
Квадратура69 m2
Етаж3-ти
Допълнителна информация
Предлагаме за продажба двустаен апартамент, разположен на среден етаж в новопостроена модерна сграда, пред Акт 16. Жилището е с функционално разпределение и включва: светла дневна с кухненски бокс, уютна спалня, баня с тоалетна и тераса.
Апартаментът се издава завършен по БДС, което дава възможност на новите собственици да го обзаведат и довършат изцяло по свой вкус и стил.
Имотът се намира в предпочитания район на кв. Левски, с отлично развита инфраструктура в близост до магазини, училища, спирки на градски транспорт и всички необходими удобства за комфортен начин на живот.
Подходящ както за лично ползване, така и за инвестиция с цел отдаване под наем.
Номер на обявата: 236789
Особености
Асансьор • Контрол на достъпа • Саниран • Тухла
















