Брокер
Обща информация
Допълнителна информация
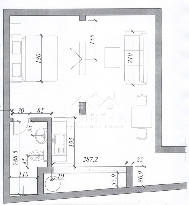
Агенция Живена предлага за продажба ателие със статут на работилница в кв. Погреби. Разположено е на сутеренен етаж (етаж: -1, под партер), с обща площ 55. 16 кв. м в сграда, ново строителство. Имотът е с частична естествена светлина, тъй като има прозорци тип английски двор. Сградата е пред акт 16. Намира се на много комуникативно място в широкия център на града в близост до Колхозен пазар, автобусни спирки, магазини и училища. Имотите ще се издават в състояние по БДС. Сградата е с модерна визия, топло- и шумоизолация, PVC дограма с трислоен стъклопакет, по най-съвременните изисквания и технологии. Разпределение по етажност: Първи (партерен) етаж: включва гаражи и паркоместа. От втори до пети етаж са разположени жилищата - двустайни и тристайни. Не изпускайте шанса да направите своя избор и да придобиете имот с много добра локация. Агенция Живена извършва необходимите проверки на имота, който сте избрали, организира всички етапи на сделката до нейното финализиране. Оказваме съдействие за отпускане на банков кредит. Оферта 6058


