Продава 3-СТАЕН, град Пловдив, Христо Смирненски ID 78795990
111 800 €218 661.79 лв.Цената е с включено ДДС
Посетена 3 пътиПубликувана в 10:02 на 30 Януари 2026
Обща информация
Квадратура132 m2
Етаж1-ви
Допълнителна информация
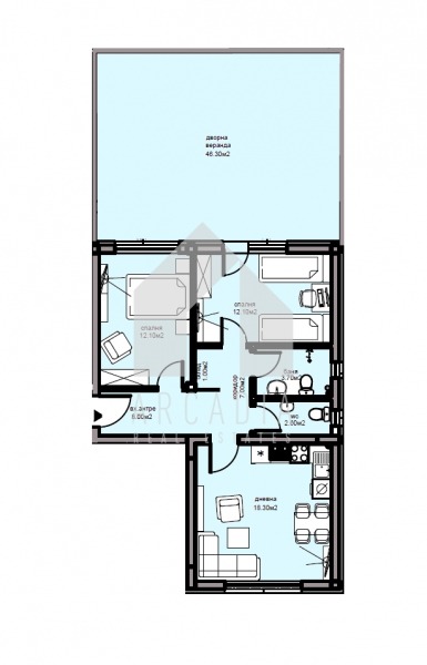
ОФЕРТА: 28327 - НОВА ЛУКСОЗНА ЖИЛИЩНА СГРАДА!!! Удобна и комуникативна локация, безспорно качество на изпълнение, достъпни цени.
Предлагаме Ви за продажба ТРИСТАЙНО жилище с функционално разпределение - слънчева дневна с кухненски бокс, две спални, баня с тоалетна, втора тоалетна, входно антре, просторна веранда.
Сградата е изпълнена с висок клас материали, луксозно завършени общи части, хидравличен асансьор, фасадата е стилна и изчистена.
Има възможност за закупуване на подземен гараж.
ЗА ПОВЕЧЕ ИНФОРМАЦИЯ И ОГЛЕДИ ТЕЛЕФОН ЗА КОНТАКТИ: 0877/056 243 ТОДОР ТИМОНОВ. ВИЖТЕ ОЩЕ НАШИ ОФЕРТИ НА : WWW. ARCADIAIMOTI. COM
Особености
Тухла

