Обща информация
Допълнителна информация
Реф. 012588
Агенция за недвижими имоти BAS Properties предлага за продажба двустаен апартамент със собствен двор в бутикова новострояща се сграда в кв. Витоша, гр. София. Имотът съчетава модерна среда, спокойствие и отлична локация.
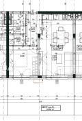
Основни параметри:
- Площ: 60 кв. м
- Двор: 28 кв. м
- Строителство: Тухла, 2028 г.
- Етаж: Партер от 5
- Изложение: Юг
- Отопление: ТЕЦ и електричество
- Асансьор: Да
Разпределение:
- Входно антре
- Просторна дневна с кухненски бокс и трапезария
- Спалня
- Баня с тоалетна
- Складово помещение
- Собствен двор с излаз от дневната и спалнята.
Имотът се издава по БДС. Подходящ е както за лично ползване, така и за инвестиция. Предлага комфорт, собствено външно пространство и бъдеща модерна жилищна среда.
Сграда:
Ново строителство с висококачествени материали, съвременна архитектура, контролиран достъп и предвидени зелени площи. Сграда на четири етажа с висок стандарт на изпълнение.
Очакван Акт 16: 2028 г.
Локация:
Отлична транспортна свързаност бърз достъп до бул. Симеоновско шосе, бул. Черни връх, Околовръстен път.
В близост до МОЛ Парадайс, Ринг Мол, болници Вита и Токуда, училища, детски градини и зони за отдих като Ловен парк, Южен парк и Зоологическата градина.
За допълнителна информация и оглед свържете се с нас!
*Предлагаме напълно безплатно съдействие при жилищно кредитиране от банка.




