Обща информация
Допълнителна информация
ЕКСКЛУЗИВНО БЕЗ КОМИСИОН К - КОНСУЛТ продава южен 3-стаен апартамент в новостроящата се сграда - Daria Residence на метри от метростанция Овча купел II.
С НАЛИЧЕН АКТ14!
На терена са разположени две тела - 'А' и 'Б', с общ подземен паркинг с предвиден удобен заход от улицата. На партера са разположени търговски обекти за обитателите. Сградата разполага с прекрасен озеленен вътрешен двор за живущите.
Изгражда се от реномирана строително-инвестиционна фирма с дълго портфолио и реализирани десетки сгради не само в столицата, специализирана във строителство на сгради и съоръжения, пътна инфраструктура, всички видове довършителни работи, строителство до ключ, саниране на обществени и жилищни сгради и т. н.
Сградата впечатлява с архитектурен облик, изящни форми, оптимална функционалност при разпределение на пространствата и озеленени тераси.
От апартаментите се разкрива прекрасна гледка към Витоша планина, посредством френски прозорци с троен стъклопакет - 5камерна дограма.
Сградата предлага максимална сигурност на своите обитатели, изгражда се с висококачествени и устойчиви на времето материали, заложено е на иновативни строителни технологии.
Локализира се на тиха улица до метростанция Овча купял II и болница ДОВЕРИЕ, недалеч от НБУ, локацията е характерна с нискоетажно строителство, чист въздух и големи отстояния на сградите.
В близост са разположени множество спирки на градски транаспорт и търговски обекти, БИЛЛА, Фантастико, учебни заведения, фитнес и др.
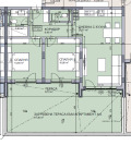
Посоченият апартамент се състои от: Коридор, дневна с кухненски бокс, две аналогични спални, баня с тоалетна, самостоятелна тоалетна и просторна тераса с излаз от всяко помещение.
Изложението е юг.
Апартаментът разполага с избено помещение, включено в цената.
Към имота има възможност за закупуване на подземно и/или надземно паркомясто.
С възможност за частично или пълно довършване и обзавеждане.
К - КОНСУЛТ съдейства при отпускането на всякакъв вид банково финансиране.
Цента е с ДДС.
Можете да се свържете с нас на: 0887736319 / 0883394409, както и да посетите сайта ни: https://k-konsult.bg/ и да разгледате и други актуални предложения в сградата.
















