Брокер
Обща информация
Допълнителна информация
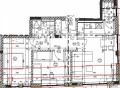
Представям ви тристаен апартамент в новострояща се жилищна сграда с модерна визия и отлична локация в сърцето на кв. Аспарухово!
Жилището е със следното разпределение: Просторна дневна с кухненска част и килер, две слънчеви спални, обща тераса към трите стаи и санитарно помещение. Апартамента се издава по БДС - готов за индивидуален интериорен почерк. Възможност за закупуване на паркомясто във вътрешния двор.
Квартал Аспарухово е известен със своята прекрасна локация, която предлага разнообразие от възможности за развлечения и отдих. Един от основните акценти в квартала е неговият парк, който е просторен и добре поддържан и предоставя идеалния уютен кът за прекарване на време с приятели и семейство, също така Аспарухово се гордее с близостта си до морския бряг и чистия плаж. Предлага разнообразие от места за хранене, кафенета и магазини, които правят този квартал жив и пълен с живот през цялата година. Той съчетава спокойствие и комфорт с близост до природата и удобен достъп до центъра на град Варна. С обществен транспорт или личен автомобил, можете бързо и лесно да стигнете до центъра на гр. Варна, където ще откриете допълнителни възможности за пазаруване, ресторанти и забавления.
Нова тухлена сграда с асансьор, съвременна фасада и модерна архитектура.
Локация! Отлични площи! Тишина и спокойствие, същевременно близо до спирка на градски транспорт и всички нужни удобства!
Обади се сега и цитирай този код 661573




