Продава 3-СТАЕН, град Варна, Владислав Варненчик 1 ID 79451852
152 900 €299 046.41 лв.Не се начислява ДДС
Брокер
Клиентски център АДРЕС,Личен телефон: 0882 121 460
Посетена 89 пътиПубликувана в 03:10 на 29 Август 2025
Обща информация
Квадратура97 m2
Етаж3-ти
ГАЗНЕ
ТEЦНЕ
Допълнителна информация
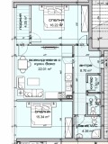
Тристаен тухлен апартамент в нова сграда с западно изложение. Състои се от коридор, дневен тракт, две спални, тераса, баня с тоалетна, отделно тоалетна и килер.
Ситуирана в сърцето на варненския квартал Владислав Варненчик , в непосредствена близост до най-голямата верига за играчки Джъмбо . Районът е със силно развита инфраструктура хранителен хипермаркет Кауфланд е на 100 м, Лидъл, медицински център ДКЦ 3, БУЛМАГ, пощенски клон, училища (основно и средно), детски градини, парк за отдих, Пазар ООД.
Нова тухлена кооперация.
Качествено строителство
Обади се сега и цитирай този код 648602
Особености
Асансьор • Тухла
Страница на обявата
Брокер
Клиентски център АДРЕС,Личен телефон: 0882 121 460



