Брокер
Офис 'пл. Света Неделя'Личен телефон: 0882 121 488
Посетена 129 пътиПубликувана в 09:55 на 19 Ноември 2025
Обща информация
Квадратура63 m2
Етаж1-ви
ГАЗНЕ
ТEЦДА
Допълнителна информация
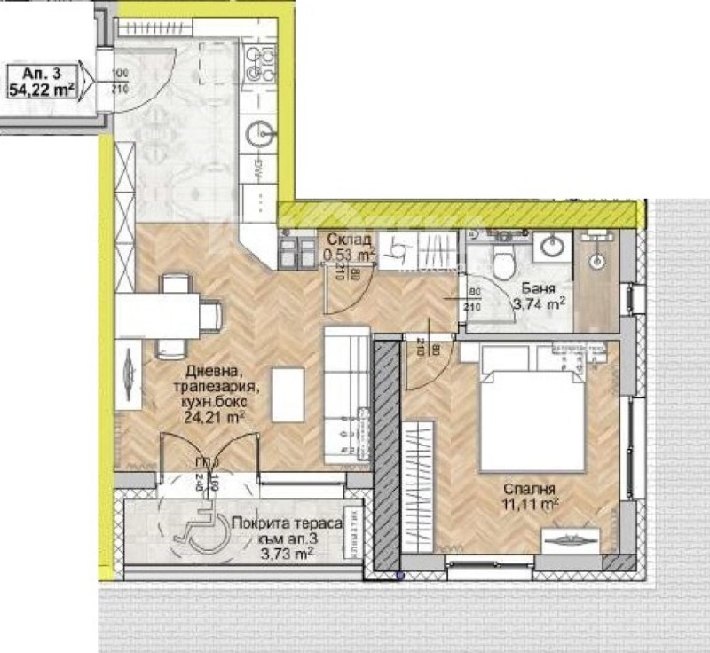
Функционален двустаен апартамент в жк ' ЛЮЛИН 8' !
Върху площ от 64 кв. м са разположени хол с трапезария и кухненски бокс (24 кв. м), спалня 11 кв. м, баня и тераса.
Изложения - югозапад.
Етаж 1 от 9.
Паркомясто 18500 евро.
' Люлин-8' или ' Люлин - център' е предпочитан за живеене и инвестиция район!
Отлична и изградена инфраструктура:
- МЕТРОСТАНЦИЯ ' Сливница'
- спирки на градски транспорт
- училища и детски градини
- множество магазини.
Модерна новострояща се сграда в жк ' ЛЮЛИН 8' .
Правилни форми и просторни помещения съответстващи на изисканите общи части!
Модерна сграда със съответстваща цена.
Метростанция.
Функционални разпределения.
Обади се сега и цитирай този код 675586
Особености
Асансьор • Тухла
Страница на обявата
Брокер
Офис 'пл. Света Неделя'Личен телефон: 0882 121 488


