Обща информация
Допълнителна информация
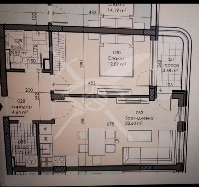
Компания `ЕКС` представя на Вашето внимание двустаен апартамент в жк. Зона Б-19.
МЕСТОПОЛОЖЕНИЕ: Намира се в район, който предлага удобен достъп до метростанции и основни транспортни артерии, което осигурява бърза и лесна връзка с всички части на града.
СТРОИТЕЛСТВО: Апартаментът е ситуиран на 2-ри етаж в нова тухкена сграда.
РАЗПРЕДЕЛЕНИЕ: Жилището разполага с площ от 70 кв. м. разпределена във входно антре, дневна с кухненски бокс, спалня, баня с тоалетна, мокро помещение и лоджия
СЪСТОЯНИЕ: НА ШПАКЛОВКА И ЗАМАЗКА.
Заповядайте да Ви го покажем. Използвайки нашите услуги Вие ще превърнете закупуването на новия си дом в едно приятно изживяване, ще получите персонален консултант, съдействие при кандидатстване за кредит от всички банки в България, интериорни дизайнери и екип, който да се погрижи за нужните документи по Вашата сделка. На Ваше разположение сме всеки ден, от понеделник до неделя от 09:00 до 20:00ч. Възползвайте се от безплатна консултация в наш офис, където ще ви спестим време и ще ви запознаем с всички актуални имоти в България, отговарящи на Вашето търсене. Свържете се с нас на 0887 77 99 90 или на 0886 12 12 57 и цитирайте кода към имота: 94169.

