Обща информация
Допълнителна информация
ДИРЕКТНО ОТ ИНВЕСТИТОРА - новостроящ се жилищен комплекс!
 Сити Пропъртис  ООД Ви представя многостаен апартамент 12Г1 в комплекс  Aurora Residence  проектиран с модерна визия и стил в съчетание с висококачествени материали и технологии, отговарящи на най - съвременните изисквания. 
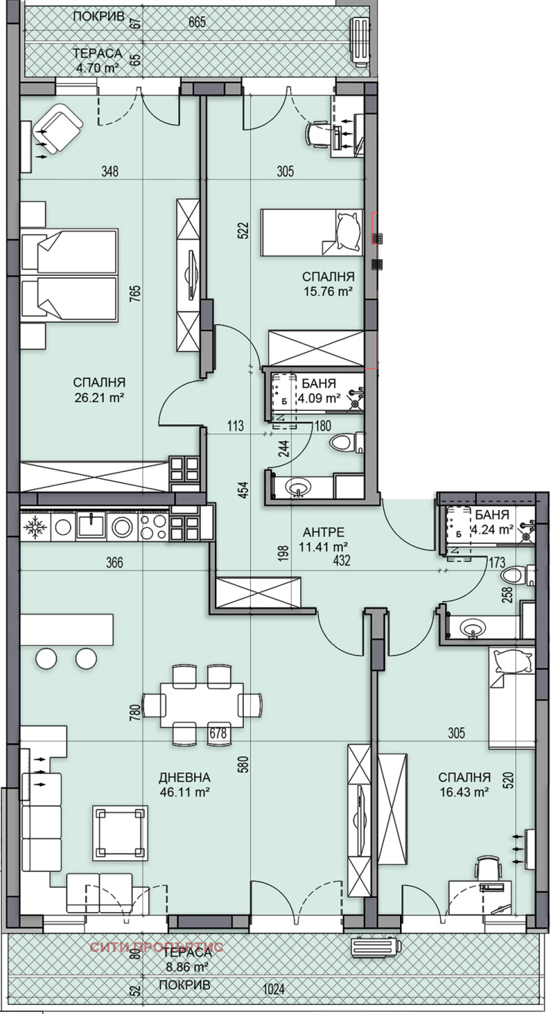
Апартаментът е на дванадесети жилищен етаж,  част от секция Г и предлага функционална обща квадратура от 183, 70 кв. м. Състои се от спалня (26, 21 кв. м. ), спалня (15, 76 кв. м. ), спалня (16, 43 кв. м. ), хол с кухня (46, 13 кв. м. ), баня с тоалетна (4, 09 кв. м. ), баня с тоалетна (4, 24 кв. м. ), антре (11, 41 кв. м. ), тераса (8, 86 кв. м. ) и тераса (4, 70 кв. м. ). 
Локацията осигурява бърз и лесен достъп до центъра на града. Комплексът е разположен в близост до големи пътни артерии, търговски обекти, училища и детски градини. 
На партер, се разполага иновативно общо пространство, за ползване от всички собственици    Aurora Lounge . Естетика и уют разгърнати на едно място в обособени зони с мека мебел, приканващи за почивка и срещи с приятели на чаша чай или кафе. В допълнение е и удобен работен кът с достъп до интернет и възможност за работа в непринудена обстановка. 
Характерно за строителството на жилищните секции, са малкото на брой апартаменти   по 2, 4 или 5 на етаж и височина на таваните  - 2, 70 м. 
На разположение са удобства, като подземен и надземен паркинг, красиво озеленени площи, обособен детски кът, зони за отдих, подземно и надземно паркиране. 
В унисон с желанията на нашите клиенти,  Aurora Residence   предлага напълно завършени апартаменти, с внимателно подбран интериор и перфектно изпълнение, отговарящи на изискванията на купувачите. 
Цялостната визия на комплекса и останалите апартаменти, може да разгледате на: Aurora residence - Сити Пропъртис (city-bg. com)
За допълнителна информация, се свържете с нас на: тел +359877277956, +359877277935 или  имейл: sales@city-bg. com












