Брокер
ОлимпияЛичен телефон: 0879006888
Посетена 328 пътиПубликувана в 15:18 на 12 Декември 2025
Обща информация
Квадратура100 m2
Етаж12-ти
Допълнителна информация
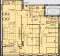
Тристаен апартамент в нов комплекс до моста на ВИХВП, в непосредствена близост до два големи супермаркета, близо до училища, детски градини, ясли и автобусни спирки. 83 кв. м. чиста площ, южно изложение, две спални, две бани, една тераса. Пред Акт 16. Предлагат се подземни паркоместа по 25000 евро.
Особености
Тухла
Страница на обявата
Брокер
ОлимпияЛичен телефон: 0879006888

