Обща информация
Допълнителна информация
Агенция БиПиСи представя: Двустаен апартамент в кв. Витоша, София ново строителство с планирано завършване през 2026 г. 🏡 ✨ Идеален както за собствен дом, така и за инвестиция, с отличен достъп до основни пътни артерии и зелени площи.
- 🏢 Сграда: модерна архитектура, енергийно-ефективни решения, качествени общи части, асансьор, контролиран достъп и добре поддържани пространства.
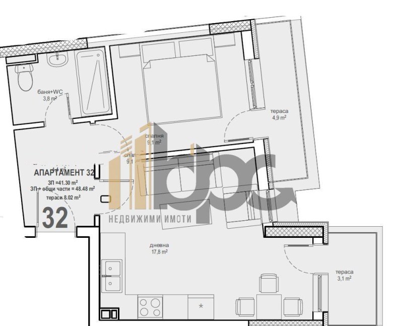
- 🛋 ️ Разпределение: входно антре, просторна дневна с кухненски бокс, светла спалня, баня с WC, тераса/лоджия функционален двустаен апартамент, създаден за комфорт и удобство.
- 🌞 Осветеност: оптимално естествено осветление и спокойна градска гледка; атмосфера, подходяща за работа от вкъщи и релакс.
- 🔧 Състояние: предава се по съвременни стандарти за ново строителство, с възможност за индивидуално довършване и избор на материали при договаряне.
- ❄ ️ Отопление и комфорт: предвидени енергийно ефективни инсталации; опция за климатизация/термопомпа според предпочитанията на купувача.
- 🚗 Паркиране: възможност за закупуване или наем на подземно/надземно паркомясто към сградата (при наличности).
- 🧾 Предимства: разумни разходи за поддръжка, съвременна инфраструктура, бърза връзка до центъра и главни булеварди. Подходящ имот за дългосрочно отдаване под наем с висока ликвидност.
- 💡 Допълнително: възможни гъвкави схеми на плащане след индивидуална консултация; съдействие при финансиране и довършителни работи.
- 📞 Покана за оглед: свържете се за повече детайли, планове, цени и актуални наличности съдействаме от първия оглед до нотариален акт.
За квартала:
- 🏞 ️ Кв. Витоша съчетава спокойствие, ново строителство и зеленина, като предлага приятна жилищна среда с модерни удобства и ниска плътност на застрояване.
- 🚌 Отлична свързаност с града близост до университети, търговски центрове, спортни съоръжения и планината Витоша за активен начин на живот.
реф. ном 116244







