Брокер
Обща информация
Допълнителна информация
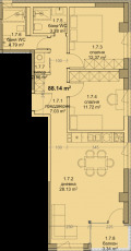
Оферта 11075 Рехаус представя нов проект на строителна фирма с дългогодишен опит и множество построени сгради. Локация: в близост до Делта Мол, Медицински център, Училище и детска градина. Комплексът се състои от 3 сгради, всяка от които има по 18 апартамента, разположени на по 6 етажа. Предлагат се двустайни и тристайни жилища с практични и функционални разпределения. Предвидени са паркоместа и гаражи с контролиран достъп. Комплексът е разположен на пешеходно разстояние от автобусни спирки и главни пътни артерии. Разполага с озеленено пространство. Всички апартаменти са с южно изложение. Жилищата са прекрасна инвестиция за живеене или за отдаване под наем. Гъвкави схеми на плащане. Съдействие от наша страна, при необходимост от банков кредит За повече информация и огледи Кристина Сулева 0877 70 80 19





