Обща информация
Допълнителна информация
Предлагаме за продажба двустаен апартамент, разположен на първи етаж в сграда с Акт 16.
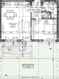
Имотът е с обща площ от 69. 54 кв. м. , от които 58. 28 кв. м. представляват застроена площ.
Към апартамента има прилежащ двор с площ от 54. 46 кв. м.
Разпределението му е следното: дневна с кухненски бокс, спалня, баня с wc, склад и тераса.
Изложението е югоизточно.
Отоплението е на ТЕЦ.
Апартаментът ще бъде издаден на шпакловка и замазка, което дава възможност за довършване и обзавеждане по вкус на бъдещите собственици.
Седемкамерна ПВЦ дограма, осигуряваща отлична изолация и енергийна ефективност.
Има опция за закупуване на гараж на стойност 50 000 евро.
В близост до метростанция Дружба, спирки на градски транспорт, училища и магазини, което осигурява лесен и бърз достъп до всички удобства на района.
Оферта 2226




