Брокер
Обща информация
Допълнителна информация
оф. 22793
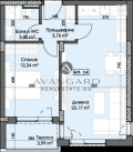
АВАНГАРД РИЪЛ ЕСТЕЙТ има удоволствието да представи на Вашето внимание УНИКАЛЕН ДВУСТАЕН АПАРТАМЕНТ в новостроящ се ЛУКСОЗЕН жилищен комплекс разположен в квартал ТРАКИЯ. Отличната ЛОКАЦИЯ в района на хотел SPS, МОЛ Плаза и МЕТРО съчетано с високото качество на строителство и добрите цени прави КОМПЛЕКСА ОТЛИЧЕН ИЗБОР ЗА ЖИВЕЕНЕ ИЛИ С ЦЕЛ ИНВЕСТИЦИЯ! Апартаментът се състои от : дневна с кухненски бокс, спалня, баня с тоалетна и тераса. В сградите има избор от ЕДНОСТАЙНИ, ДВУСТАЙНИ и ТРИСТАЙНИ , ИЗЛОЖЕНИЯ и възможност за закупуване на подземни паркоместа и гаражи! ДОКАЗАН ИНВЕСТИТОР !!! В строителството се използват най- добрите на пазара материали и ще бъдат спазени всички европейски изисквания за качество.
Цената е актуална при плащане на цялата сума до декември 2025г
Цена при плащане на акт 14 - 88 267 евро
Цена при разсрочено плащане в периода на строителството - 92 913 евро
Авангард Риъл Естейт предлага Висока сигурност при покупка на имот и цялостно съдействие до финализиране на сделката пред нотариус. За контакт: email: [email protected]; За още актуални оферти: www.avangardrealestate.bg



