Посетена 2 пътиПубликувана в 16:00 на 06 Април 2026
Обща информация
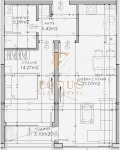
Квадратура77 m2
Етаж8-ми
Допълнителна информация
Организация Фокус представя двустаен апартамент в жилищен комплекс в ж. к. Тракия, гр. Пловдив.
Площ: 76, 41 кв. м
Етаж: 8/9
Разпределение: антре, дневна с кухненски бокс, спалня, баня с тоалетна и тераса.
Апартаментът предлага функционално разпределение и удобна площ, подходяща както за живеене, така и за инвестиция.
Сградата е пред Акт 15, което означава, че завършването е в близък срок.
Локацията предлага спокойствие и удобство с лесен достъп до градската инфраструктура.
В комплекса се предлагат и други апартаменти.
Свържете се с нас за повече информация и избор на подходящ имот.
Референтен номер: 62530
Особености
Тухла


